:: ECONOMY :: ВІБРАЦІЙНА МАШИНА ДЛЯ УЩІЛЬНЕННЯ МАТЕРІАЛІВ :: ECONOMY :: ВІБРАЦІЙНА МАШИНА ДЛЯ УЩІЛЬНЕННЯ МАТЕРІАЛІВ
:: ECONOMY :: ВІБРАЦІЙНА МАШИНА ДЛЯ УЩІЛЬНЕННЯ МАТЕРІАЛІВ
 
UA  PL  EN
         

Світ наукових досліджень. Випуск 52

Термін подання матеріалів

19 травня 2026

До початку конференції залишилось днів 21



  Головна
Нові вимоги до публікацій результатів кандидатських та докторських дисертацій
Редакційна колегія. ГО «Наукова спільнота»
Договір про співробітництво з Wyzsza Szkola Zarzadzania i Administracji w Opolu
Календар конференцій
Архів
  Наукові конференції
 
 Лінки
 Форум
Наукові конференції
Наукова спільнота - інтернет конференції
Світ наукових досліджень www.economy-confer.com.ua

 Голосування 
З яких джерел Ви дізнались про нашу конференцію:

соціальні мережі;
інформування електронною поштою;
пошукові інтернет-системи (Google, Yahoo, Meta, Yandex);
інтернет-каталоги конференцій (science-community.org, konferencii.ru, vsenauki.ru, інші);
наукові підрозділи ВУЗів;
порекомендували знайомі.
з СМС повідомлення на мобільний телефон.


Результати голосувань Докладніше

 Наша кнопка
www.economy-confer.com.ua - Економічні наукові інтернет-конференції

 Лічильники
Українська рейтингова система

ВІБРАЦІЙНА МАШИНА ДЛЯ УЩІЛЬНЕННЯ МАТЕРІАЛІВ

 
17.03.2026 14:06
Автор: Боровець Володимир Михайлович, кандидат технічних наук, доцент кафедри робототехніки та інтегрованих технологій машинобудування Національного університету Львівська політехніка; Швадчак Любомир Васильович, студентка Національного університету Львівська політехніка
[26. Технічні науки;]

Ущільнення матеріалів відноситься до числа основних технологічних процесів, де широко використовуються вібраційні технології й устаткування. В зв'язку з цим, питанням оптимізації параметрів динамічного навантаження в процесі відроущільнення присвячена велика кількість робіт, оскільки вони забезпечують необхідну якість процесу. 

Ступінь ущільнення залежить від вибраних оптимальних режимів вібрації - інтенсивності і її тривалості, а також відповідності прийнятих параметрів вібрації (амплітуди, частоти і характеру коливань) властивостям матеріалу, що підлягає ущільненню. Основним фактором ефективності вібрування є не амплітуда чи частота коливань, узяті окремо, а їх функції, що визначають швидкість чи прискорення вібруючої суміші, величини яких повинні бути достатніми для зменшення сил внутрішнього тертя.

Для надійної роботи віброплощадок круговими коливаннями необхідно забезпечити, щоб вісь дебалансного вала співпадала з віссю, що проходить через центр ваги коливних мас. У випадку порушення цієї вимоги траєкторії кругових коливань окремих точок вібруючої суміші, форми і віброплощадки перетворюються в еліпси з різним співвідношенням і нахилом їхніх осей. Очевидно, що точки, більш віддалені від осі дебалансного вала, будуть мати більший ексцентриситет еліптичної траєкторії. Такі коливання викликають значний зсув вібруючої суміші убік напрямку обертання дебалансного вала і величина амплітуди змінюється у значних межах. Внаслідок цього явища горизонтальні складові коливань форми із сумішшю по висоті будуть неоднаковими, що спричиняють нерівномірне ущільнення. 

У віброплощадках з вертикально спрямованими синусоїдальними коливаннями  вібруючої суміші утворюються рухи, перпендикулярні столу і дотичні до вертикальних стінок форми. Дані віброплощадки відрізняються рівномірним розподілом амплітуд коливання, що забезпечує достатньо якісне ущільнення суміші.

Для приводу вібростола використовують двовальний дебалансний вібратор з валами, що обертаються назустріч один одному і забезпечують вертикально направлені коливання. У віброплощадках з вертикально направленими синусоїдальними коливаннями з механічними приводом застосовують шестеренчасті синхронізатори, які забезпечують синфазність обертання обох валів вібраторів. Найбільше поширення одержали вібромеханізми з круговими, вертикально спрямованими  і з горизонтально спрямованими  коливаннями з частотами 25 і 50 гц, оскільки при таких частотах привод безпосередньо здійснюється від електродвигунів з частотами обертання n = 1500 об/хв та n = 3000 об/хв.

Використання шестеренчастих синхронізаторів в значній мірі супроводжується підвищеним шумом під час роботи машин, а також має невисокий коефіцієнт надійності обладнання. Тому доцільно використовувати майданчики з самосинхронізацією валів приводу дебалансних віброзбудників у яких необхідно забезпечити відношення  (Mr2/I)<2, де  r - радіус від центра мас до осі кожного із симетрично обертового бебаланса, M - маса та I- центр обертання системи.

Схема дії сили двовального віброзбудника з синхронно-синфазним обертанням валів представлена на рис.1,




Рис.1 Схема дії сили двохвального віброзбудника з синхронно-синфазним обертанням валів

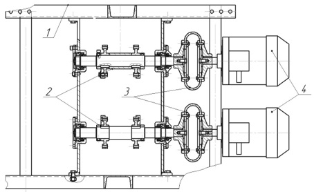
де  Fa1=m1 · r1 · ɷ2 - вимушуюча сила створювана першим віброзбудником,  Fa2=m2 · r2 · ɷ2 - вимушуюча сила створювана другим віброзбудником. При синхронно синфазному обертанні валів і однакових дебалансних валах m1=m2, r1=r2ɷ1=-ɷ2. У цьому випадку загальна  вимушуючи сила двовального віброзбудника буде їх векторною сумою, і її величина складе Fa=2m2 · r2 · ɷ2· cos ɷt. При обертанні дебалансів у протилежні сторони  вертикальні складові вимушуючої сили складатимуться одна з одною, а горизонтальні взаємокомпенсуються (Рис.2).




Рис.2. Конструктивна схема двохвального віброзбудника: 1-рама вібромашини; 2- дебалансні віброзбудники; 3-пружні муфти, 4- електродвигуни.

Висновок. Для ущільнення сумішей доцільно використовувати високочастотні вібратори з направленими коливаннями, що дозволяють в значній мірі покращити якість отриманого продукту та зменшити час віброущільнення.

Список  літератури

1. Шоловій Ю. П., Магерус Н. І. Аналіз коливань вібруючого днища при витіканні дрібнодисперсних сипких матеріалів з бункерів // Автоматизація виробничих процесів у машинобудуванні та приладобудуванні : укр. міжвідомчий наук.-техн. зб. Львів : Видавництво Львівської політехніки, 2020. Т. 54. С. 59–68. 

2. Kelly S. G. Mechanical Vibrations: Theory and Applications. — Cengage Learning, 2012. — 720 p. 



Creative Commons Attribution Ця робота ліцензується відповідно до Creative Commons Attribution 4.0 International License

допомогаЗнайшли помилку? Виділіть помилковий текст мишкою і натисніть Ctrl + Enter


 Інші наукові праці даної секції
РОЗРОБКА ГІБРИДНОЇ АВТОНОМНОЇ ЕНЕРГОУСТАНОВКИ МАЛОЇ ПОТУЖНОСТІ
19.03.2026 10:56
MODERN METHODS OF WEAK BASEMENTS’ STRENGTHENING
18.03.2026 13:50
METHODOLOGY FOR INVESTIGATING FORCED VIBRATIONS OF MASSIVE STRUCTURAL ELEMENTS USING THE BOUNDARY INTEGRAL EQUATION METHOD
10.03.2026 14:08
NUMERICAL MODELLING OF THE BEHAVIOUR OF OSSIMETRIC STRUCTURAL ELEMENTS UNDER CREEP AND FAILURE
03.03.2026 11:12




© 2010-2026 Всі права застережені При використанні матеріалів сайту посилання на www.economy-confer.com.ua обов’язкове!
Час: 0.203 сек. / Mysql: 2039 (0.163 сек.)